PARASITE PROJECT

Cheever Hall, Bozeman, MT. (3rd yr)

The parasite was a short two week project in which I was assigned with creating a small building attached to Cheever hall, MSU. My professor pushed the concept of “magic realism”, so I took this opportunity to experiment with developing a flowing inhabitable space using unconventional forms.

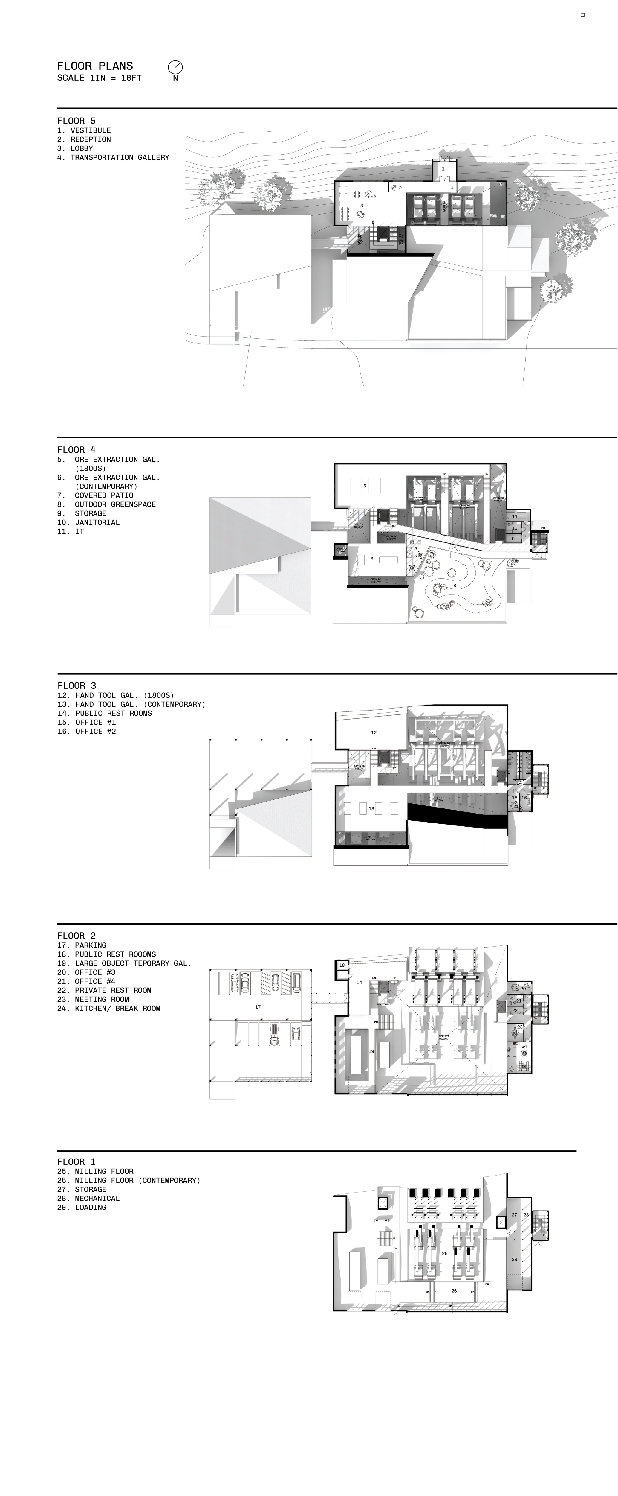
GOLD MINE MUSEUM

Helena, MT. (2nd yr)

the concept of a gold mining museum comes from Helena’s rich history of gold mining predating the state of Montana. After a deep research of 1800s gold mills a design was formed based on my understanding of how these structures conform to the hillsides on which they sit. looking at the program of a museum and that of a gold mill I created and interior function that works like that of a gold mill but rather than processing ore downward through machines, users are guided through an entrance on the top level and then downward through gallery spaces.

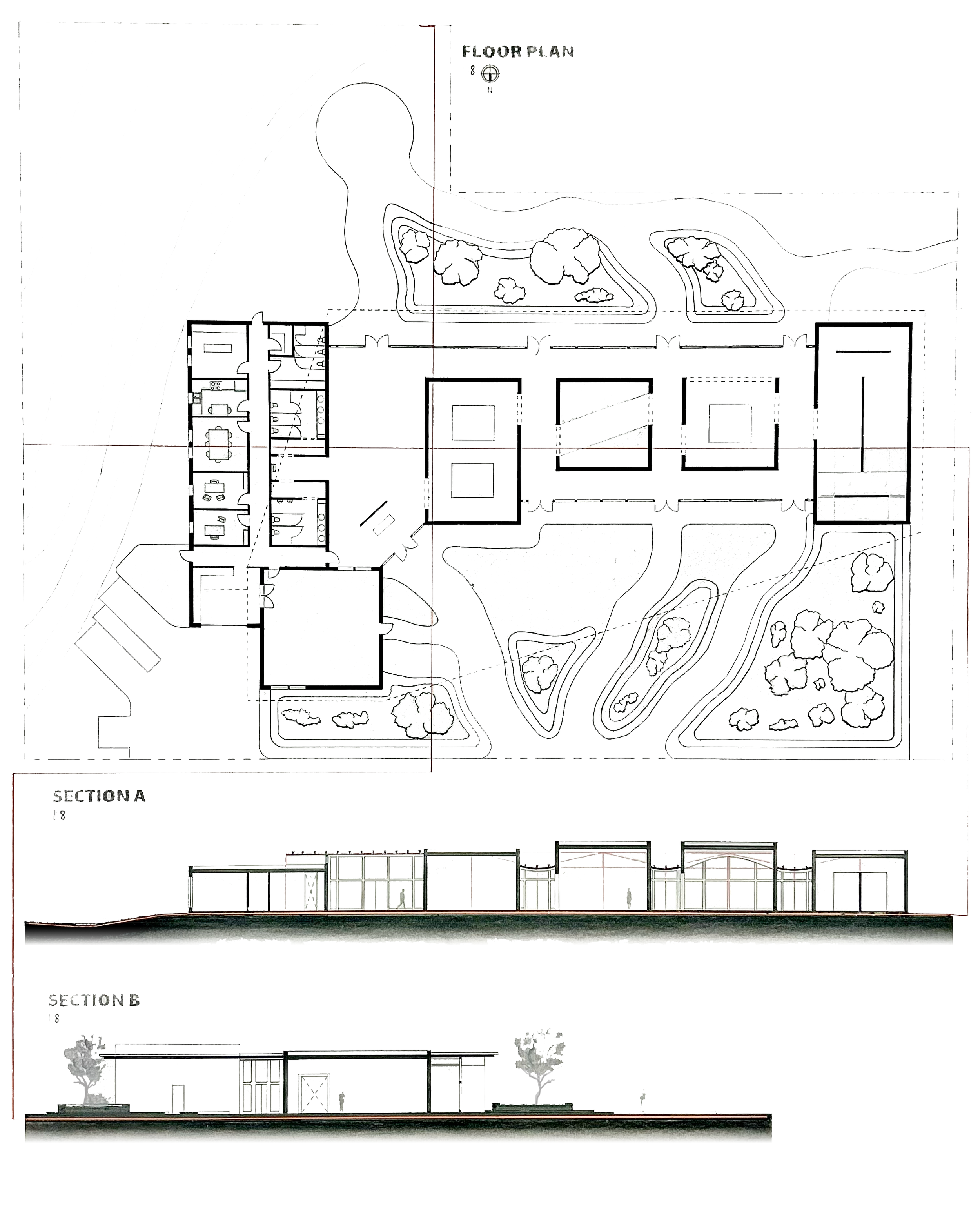
ARTIST GALLERY

Bozeman, MT. (2nd Year)

This gallery, designed specifically to showcase the art work of Tara Donovan Embodies her artistic process. She is known for creating natural mimicry through the use of everyday objects. This galley consists of exhibit spaces with different lighting and spacial qualities to conform to her varying art types. the layout of the structure mimics the Bridger, Gallatin, and Madison ranges. The translucent roof structure is representational of undulating clouds falling into mountain valleys. The convergent foot path at the entrance of the site is a subtle reference to the convergence of the Gallatin, Madison, and Jefferson rivers.

PHEONIX ARCHEOLOGY PROJECT

Taşlıca, Marmaris, Türkiye. (3rd yr)

Consisting of a archeological gallery, laboratory, multi-use performance theatre / community refuge, community garden, and multiple other community resources, this campus aims to serves the people and history of a small turkish peninsula. using a set of locally sourced material such as keric, limestone and Turkey oak this design integrates the traditional building techniques of Goz dolma, and Himis with contemporary design elements, and materials.

PARAMETRIC STAIR

(3rd yr)

Our class was assigned with developing a staircase with parametric capabilities using just a Grasshopper script. this staircase is highly parametric with each flight of stairs and landing being able to rotate up to 45 degrees. The stair system can consist of any number of flights. Each flight of stairs has its own controls. Flights can vary from 1 step up to the maximum allowable code height. Under each landing is a steel support that cantilevers to the nearest point on the terrain.